Casa semindipendente in vendita

Trana, Borgata Merlo - San Bernardino
€ 175.000
Prezzo aggiornato
5 locali 5 locali
140 Mq 140 Mq
2 bagni 2 bagni

Casa semindipendente in vendita

Trana, Borgata Merlo - San Bernardino

Descrizione annuncio

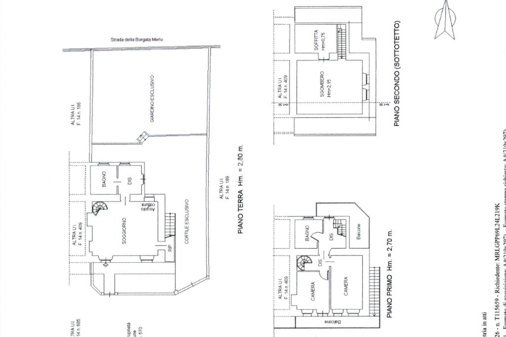
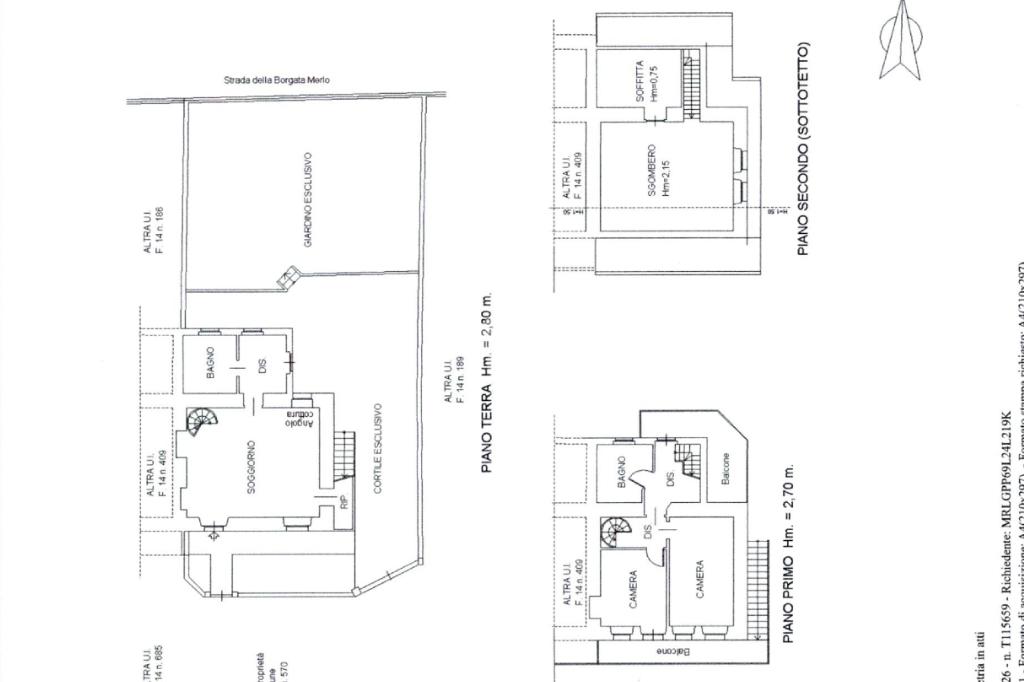
Frazione San Bernardino – Borgata Merlo
In zona tranquilla e soleggiata, casa indipendente su tre lati con giardino privato e terrazzo, ideali da sfruttare durante le belle giornate.

L’abitazione si sviluppa su più livelli ed è composta al piano terra da ingresso su soggiorno con angolo cottura, caratterizzato da soffitto con volta, bagno con doccia e locale lavanderia.

Al piano primo si trova la zona notte con camera matrimoniale, seconda camera con uscita sul balcone e bagno con doccia.

Completa la proprietà una mansarda grezza di ampia metratura, con altezze generose e predisposizione per un bagno, ideale per la realizzazione di una terza camera o spazio multifunzionale.

L’immobile è dotato di infissi in PVC con doppio vetro, riscaldamento a GPL, stufa a pellet e vi è la possibilità di allaccio al metano. A completamento, posto auto scoperto.

Soluzione ideale per chi cerca indipendenza, tranquillità e spazi esterni privati.

Mostra tutto

Nelle vicinanze

Trasporto pubblico Trasporto pubblico
Trana (S.Bernardino-v. Rivoli)
Trana (S.Bernardino-v. Rivoli)
190 m
Trana (S.Bernardino-borg. Udritto)
Trana (S.Bernardino-borg. Udritto)
190 m
Scuole Scuole
Scuole
1,8 Km
Farmacia Farmacia
Antica Farmacia di Trana
1,5 Km
Farmacia
2,7 Km
Supermercati Supermercati
CRAI
1,5 Km
Ristoranti Ristoranti
Ristoranti
1,3 Km
Ristorante Pizzeria La Vecchia Locanda
1,6 Km
Pari & Dispari
2,8 Km
Mostra tutto

Caratteristiche

Rif.:
61166740
Piano:
Su più livelli di 2
Totale piani:
2
Posti auto:
1
Balconi:
1
Terrazzi:
1
Mostra tutto
Prezzo Prezzo
€ 175.000
Rata mutuo Rata mutuo
€ 829 / mese
Spese annue Spese annue
€ 0
Proponi il tuo prezzoProponi il tuo prezzo
Immobile valutato con T·Valuta

Classe Energetica

Questo immobile è esente da classe energetica
Anno di costruzione:
1967
Riscaldamento:
Autonomo
Tipo impianto:
A radiatori
Tipo alimentazione:
GPL

Prezzo ridotto di €1 (3%%)

Ti interessa visionare l'immobile?

Fissa un appuntamento  Fissa un appuntamento

Richiedi informazioni

Clicca su Leggi per aprire l'informativa
* Questi campi sono obbligatori

Calcola il tuo mutuo

Semplice e senza impegno
Anticipo

( % )
Mutuo

( % )

pochi semplici passi

inserisci i tuoi dati
Questionario completato
Grazie per aver richiesto un appuntamento senza impegno con un nostro Consulente del Credito e Assicurativo.

Hai inserito correttamente tutti i dati necessari e a breve riceverai una e-mail con un link da convalidare per inviare i tuoi dati.
Affiliato
Studio Bruino Sas
Via Roma, 32 10090 Bruino (TO)

Il nostro staff


  • Gei Marziano
    Affiliata
Via Roma, 32 10090 Bruino (TO)
Zona: Bruino-Sangano-Trana
Mostra su mappa
Orari: dal lunedi' al venerdi' dalle 9:00 alle 12.30-15:00 alle 20:00 sabato chiusura alle 19:00
Affiliato
Studio Bruino Sas
Via Roma, 32 10090 Bruino (TO)

2026 Tecnocasa Franchising S.p.A. - P. IVA 08365160152 - Via Monte Bianco 60/A 20089 Rozzano (MI). Ogni agenzia ha un proprio titolare ed è autonoma. Privacy policy | Policy utilizzo | Cookie policy