Bilocale in vendita

Trana, Via ratti
€ 85.000
2 locali 2 locali
60 Mq 60 Mq
1 bagno 1 bagno

Bilocale in vendita

Trana, Via ratti

Descrizione annuncio

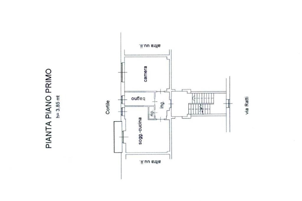
TRANA – SAN BERNARDINO Bilocale ristrutturato con posto auto coperto

Nel cuore di Trana, in zona San Bernardino, comoda a tutti i principali servizi e alla fermata del pullman, proponiamo in vendita appartamento al primo piano situato in un piccolo e tranquillo contesto abitativo.

L’immobile si apre su un ingresso con disimpegno che accompagna ai vari ambienti della casa.
La zona giorno è composta da soggiorno con angolo cottura e uscita diretta sul balcone.
La camera matrimoniale, di ampia metratura, garantisce comfort e funzionalità.
Il bagno è dotato di doccia ed è presente un comodo locale lavanderia.

La proprietà è completata da cantina e posto auto coperto.

L’appartamento, ristrutturato e pronto da abitare, rappresenta una soluzione ideale sia come prima casa sia come ottimo investimento a reddito.

Il riscaldamento è centralizzato con termovalvole ed è presente boiler elettrico per la produzione di acqua calda.

Mostra tutto

Nelle vicinanze

Trasporto pubblico Trasporto pubblico
Trana (S.Bernardino-v. Rivoli)
Trana (S.Bernardino-v. Rivoli)
30 m
Trana (S.Bernardino-borg. Udritto)
Trana (S.Bernardino-borg. Udritto)
400 m
Scuole Scuole
Scuole
2,1 Km
Farmacia Farmacia
Antica Farmacia di Trana
1,8 Km
Farmacia
2,9 Km
Supermercati Supermercati
CRAI
1,7 Km
Ristoranti Ristoranti
Ristoranti
1,1 Km
Ristorante Pizzeria La Vecchia Locanda
1,8 Km
Mostra tutto

Caratteristiche

Rif.:
61186466
Piano:
1 di 2 (Piano medio)
Posti auto:
1
Balconi:
1
Camere da letto:
1
Arredamento:
Assente
Mostra tutto
Prezzo Prezzo
€ 85.000
Rata mutuo Rata mutuo
€ 403 / mese
Spese annue Spese annue
€ 1.000
Proponi il tuo prezzoProponi il tuo prezzo
Immobile valutato con T·Valuta

Classe Energetica

Questo immobile è esente da classe energetica
Anno di costruzione:
1980
Riscaldamento:
Centralizzato
Tipo impianto:
A radiatori
Tipo alimentazione:
Metano

Ti interessa visionare l'immobile?

Fissa un appuntamento  Fissa un appuntamento

Richiedi informazioni

Clicca su Leggi per aprire l'informativa
* Questi campi sono obbligatori

Calcola il tuo mutuo

Semplice e senza impegno
Anticipo

( % )
Mutuo

( % )

pochi semplici passi

inserisci i tuoi dati
Questionario completato
Grazie per aver richiesto un appuntamento senza impegno con un nostro Consulente del Credito e Assicurativo.

Hai inserito correttamente tutti i dati necessari e a breve riceverai una e-mail con un link da convalidare per inviare i tuoi dati.
Affiliato
Studio Bruino Sas
Via Roma, 32 10090 Bruino (TO)

Il nostro staff


  • Gei Marziano
    Affiliata
Via Roma, 32 10090 Bruino (TO)
Zona: Bruino-Sangano-Trana
Mostra su mappa
Orari: dal lunedi' al venerdi' dalle 9:00 alle 12.30-15:00 alle 20:00 sabato chiusura alle 19:00
Affiliato
Studio Bruino Sas
Via Roma, 32 10090 Bruino (TO)

2026 Tecnocasa Franchising S.p.A. - P. IVA 08365160152 - Via Monte Bianco 60/A 20089 Rozzano (MI). Ogni agenzia ha un proprio titolare ed è autonoma. Privacy policy | Policy utilizzo | Cookie policy