Trilocale in vendita

Trana, Via Giuseppe Ratti
€ 69.000
3 locali 3 locali
90 Mq 90 Mq
1 bagno 1 bagno

Trilocale in vendita

Trana, Via Giuseppe Ratti

Descrizione annuncio

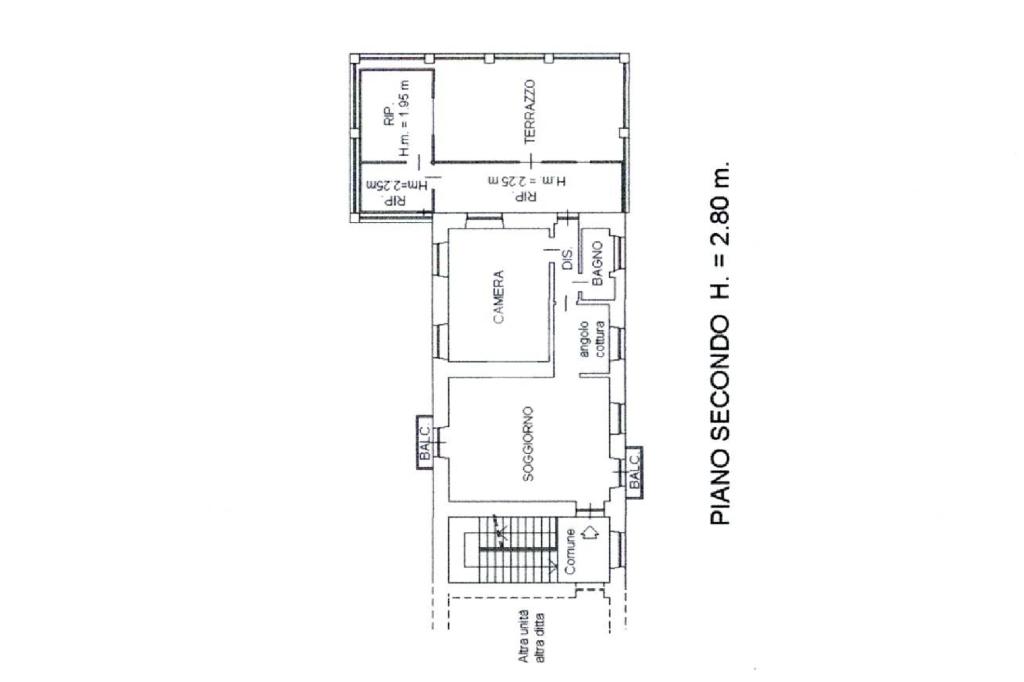
SAN BERNARDINO – Via Ratti
In zona tranquilla e soleggiata, appartamento al secondo piano in piccolo contesto di sole 3 unità abitative.

L’immobile si apre su un luminoso soggiorno con doppia esposizione, cucinino, bagno finestrato con doccia e camera matrimoniale. Dalla veranda si accede a due studioli, ideali come spazio lavoro o area hobby.

La proprietà è completata da un ampio terrazzo panoramico, perfetto da sfruttare durante le giornate più calde, oltre a un terrazzo con lavanderia e un ripostiglio.

L’appartamento si presenta in buone condizioni grazie agli interventi eseguiti negli anni. Il riscaldamento è a GPL, è presente un camino a pellet.

Soluzione ideale per chi cerca tranquillità, luminosità e ampi spazi esterni.

Mostra tutto

Nelle vicinanze

Trasporto pubblico Trasporto pubblico
Trana (S.Bernardino-v. Rivoli)
Trana (S.Bernardino-v. Rivoli)
180 m
Trana (S.Bernardino-Giardini Rea)
Trana (S.Bernardino-Giardini Rea)
340 m
Scuole Scuole
Scuole
2,2 Km
Farmacia Farmacia
Antica Farmacia di Trana
1,9 Km
Supermercati Supermercati
CRAI
1,9 Km
Ristoranti Ristoranti
Ristoranti
920 m
Ristorante Pizzeria La Vecchia Locanda
1,9 Km
Mostra tutto

Caratteristiche

Rif.:
61166691
Piano:
2 di 2 (ultimo Piano)
Balconi:
2
Terrazzi:
1
Camere da letto:
1
Arredamento:
Assente
Mostra tutto
Prezzo Prezzo
€ 69.000
Rata mutuo Rata mutuo
€ 322 / mese
Spese annue Spese annue
€ 100
Proponi il tuo prezzoProponi il tuo prezzo
Immobile valutato con T·Valuta

Classe Energetica

Questo immobile è esente da classe energetica
Anno di costruzione:
1960
Riscaldamento:
Autonomo
Tipo impianto:
A radiatori
Tipo alimentazione:
GPL

Ti interessa visionare l'immobile?

Fissa un appuntamento  Fissa un appuntamento

Richiedi informazioni

Clicca su Leggi per aprire l'informativa
* Questi campi sono obbligatori

Calcola il tuo mutuo

Semplice e senza impegno
Anticipo

( % )
Mutuo

( % )

pochi semplici passi

inserisci i tuoi dati
Questionario completato
Grazie per aver richiesto un appuntamento senza impegno con un nostro Consulente del Credito e Assicurativo.

Hai inserito correttamente tutti i dati necessari e a breve riceverai una e-mail con un link da convalidare per inviare i tuoi dati.
Affiliato
Studio Bruino Sas
Via Roma, 32 10090 Bruino (TO)

Il nostro staff


  • Gei Marziano
    Affiliata
Via Roma, 32 10090 Bruino (TO)
Zona: Bruino-Sangano-Trana
Mostra su mappa
Orari: dal lunedi' al venerdi' dalle 9:00 alle 12.30-15:00 alle 20:00 sabato chiusura alle 19:00
Affiliato
Studio Bruino Sas
Via Roma, 32 10090 Bruino (TO)

2026 Tecnocasa Franchising S.p.A. - P. IVA 08365160152 - Via Monte Bianco 60/A 20089 Rozzano (MI). Ogni agenzia ha un proprio titolare ed è autonoma. Privacy policy | Policy utilizzo | Cookie policy