Villa singola in vendita

Sangano, Via Rissone
€ 355.000
6 locali 6 locali
300 Mq 300 Mq
3 bagni 3 bagni

Villa singola in vendita

Sangano, Via Rissone

Descrizione annuncio

Sangano – Via Rissone
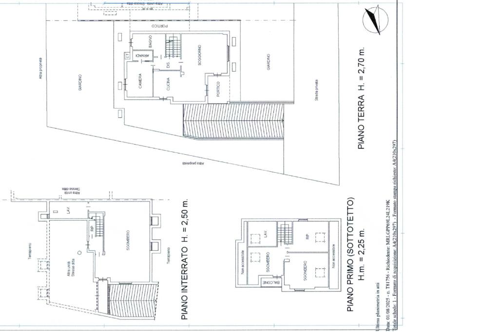
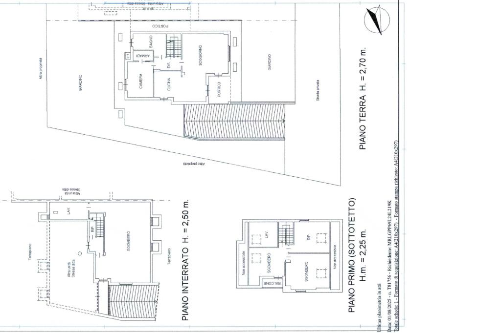
In una zona tranquilla e residenziale, villa libera su quattro lati, costruita nel 2005, con ampi spazi interni ed esterni, ideale per famiglie o per chi cerca comfort e indipendenza.

L’ingresso apre su un luminoso soggiorno con cucina a vista in stile open space. Da qui si accede direttamente al patio esterno, perfetto per pranzi e cene all’aperto.

Al piano terra troviamo una camera matrimoniale dotata di cabina armadio e con accesso al giardino privato.
Completa il piano un ampio bagno finestrato con doccia.
Il piano mansardato ospita due camere da letto matrimoniali, un grande disimpegno con uscita su un balcone, e un secondo bagno, dotato di vasca.
La zona notte è climatizzata per garantire il massimo comfort anche durante i mesi estivi.

Al piano seminterrato si trovano una comoda tavernetta, una lavanderia con doccia, un ampio box auto doppio con basculante elettrico e un pratico locale sottoscala ad uso ripostiglio.

Il giardino, ben curato, circonda la casa su tre lati ed è di circa trecento, quattrocento metri quadrati, offrendo privacy e spazio per vivere all’aperto.

L’immobile è dotato di riscaldamento autonomo con caldaia a condensazione installata nel 2022, pompa di calore nella zona giorno, stufa a pellet idro collegata ai termosifoni e una seconda stufa al piano interrato. Il riscaldamento è sezionato per piani, garantendo una gestione efficiente dei consumi. Gli infissi sono in legno con doppio vetro e l’impianto d’allarme è sia volumetrico che perimetrale.

Soluzione abitativa completa, pronta da vivere, in contesto riservato ma comodo ai principali servizi.

Mostra tutto

Nelle vicinanze

Trasporto pubblico Trasporto pubblico
Sangano (Villaggio La Lucciola)
Sangano (Villaggio La Lucciola)
260 m
Sangano (v. Bert)
Sangano (v. Bert)
340 m
Ricariche auto elettriche Ricariche auto elettriche
Campi Sportivi Villarbasse | EnelX
2,3 Km
Scuole Scuole
Scuola Media A. Einstein
320 m
Liceo Vito Scafidi
570 m
Scuole
2,1 Km
Scuola Materna
2,7 Km
Farmacia Farmacia
Farmacia San Carlo
220 m
Farmacia Santa Chiara
1,7 Km
Farmacia Comunale 20
2,1 Km
Antica Farmacia di Trana
2,4 Km
Farmacia
2,9 Km
Supermercati Supermercati
CRAI
550 m
Ekom
2,2 Km
Simply Market
2,6 Km
Negozi Negozi
Negozi
460 m
Ristoranti Ristoranti
Pari & Dispari
1,1 Km
Ristorante Pizzeria La Vecchia Locanda
2,3 Km
Trattoria Italia
2,5 Km
Mostra tutto

Caratteristiche

Rif.:
61101648
Piano:
Su più livelli di 3
Totale piani:
3
Box:
1
Posti auto:
3
Terrazzi:
1
Mostra tutto
Prezzo Prezzo
€ 355.000
Rata mutuo Rata mutuo
€ 1.674 / mese
Proponi il tuo prezzoProponi il tuo prezzo
Immobile valutato con T·Valuta

Altre caratteristiche

Descrizione dei locali
Altri Locali cantina

Classe Energetica

D
D
D
D
D
D
D
D
D
EP globale non rinnovabile:
183.28 kW h/m² anno
EP globale rinnovabile:
1.20 kW h/m² anno
EP invernale del fabbricato:
EP estiva del fabbricato:
Anno di costruzione:
2005
Riscaldamento:
Autonomo
Tipo impianto:
A radiatori
Tipo alimentazione:
Metano

Ti interessa visionare l'immobile?

Fissa un appuntamento  Fissa un appuntamento

Richiedi informazioni

Clicca su Leggi per aprire l'informativa
* Questi campi sono obbligatori

Calcola il tuo mutuo

Semplice e senza impegno
Anticipo

( % )
Mutuo

( % )

pochi semplici passi

inserisci i tuoi dati
Questionario completato
Grazie per aver richiesto un appuntamento senza impegno con un nostro Consulente del Credito e Assicurativo.

Hai inserito correttamente tutti i dati necessari e a breve riceverai una e-mail con un link da convalidare per inviare i tuoi dati.
Affiliato
Studio Bruino Sas
Via Roma, 32 10090 Bruino (TO)

Il nostro staff


  • Gei Marziano
    Affiliata
Via Roma, 32 10090 Bruino (TO)
Zona: Bruino-Sangano-Trana
Mostra su mappa
Orari: dal lunedi' al venerdi' dalle 9:00 alle 12.30-15:00 alle 20:00 sabato chiusura alle 19:00
Affiliato
Studio Bruino Sas
Via Roma, 32 10090 Bruino (TO)

2025 Tecnocasa Franchising S.p.A. - P. IVA 08365160152 - Via Monte Bianco 60/A 20089 Rozzano (MI). Ogni agenzia ha un proprio titolare ed è autonoma. Privacy policy | Policy utilizzo | Cookie policy