Trilocale in vendita

Bruino, Via buonarroti
€ 175.000
3 locali 3 locali
80 Mq 80 Mq
1 bagno 1 bagno

Trilocale in vendita

Bruino, Via buonarroti

Descrizione annuncio

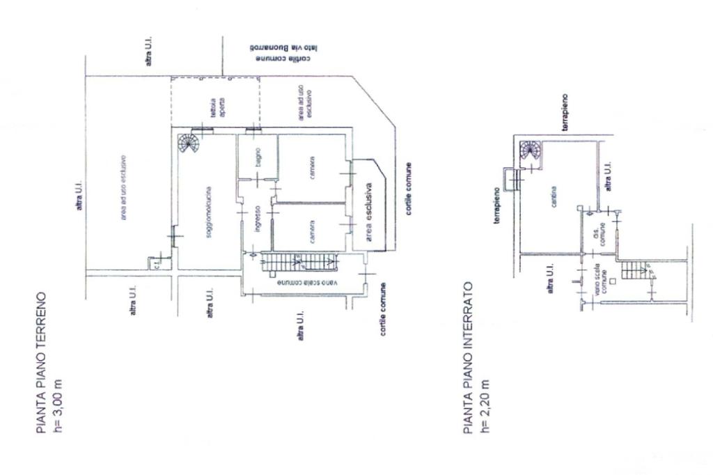
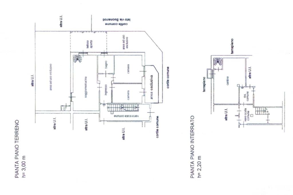
Bruino – Appartamento con giardino privato in piccolo contesto

In tranquillo contesto residenziale di sole sei famiglie, appartamento al piano terra libero su tre lati, dotato di giardino privato.

Nel 2016 l’appartamento è stato totalmente ristrutturato con ottimi materiali , e sono stati rifatti gli impianti, i pavimenti ed i bagni.

L’ingresso si apre su un’ampia e luminosa zona giorno composta da soggiorno con angolo cottura, con uscita diretta sul giardino terrazzato, ideale per momenti di relax e convivialità.

La zona notte è composta da una camera matrimoniale e una cameretta , entrambe con accesso diretto al terrazzino.
Completa il piano un bagno con vasca.
Nella zona giorno è presente impianto di climatizzazione.

Al piano interrato troviamo una grande cantina rifinita e riscaldata, collegabile internamente al piano abitativo tramite scala, attualmente adibita a lavanderia, dotata di pompa di rilancio per la lavatrice.

L’immobile è circondato sui tre lati da un giardino terrazzato molto curato, completo di tende da sole e tettoia coperta per posti auto.

Dotazioni e comfort:
- infissi in alluminio con doppio vetro
- tapparelle motorizzate
- predisposizione antifurto
- riscaldamento autonomo a metano con caldaia a condensazione
- predisposizione per impianto a pellet canalizzato con bocchette nella zona notte

Soluzione ideale per chi cerca indipendenza, spazi esterni e comfort moderni in un contesto riservato.

Mostra tutto

Nelle vicinanze

Trasporto pubblico Trasporto pubblico
Bruino (v. Volvera)
Bruino (v. Volvera)
850 m
Bruino (Alba Serena)
Bruino (Alba Serena)
890 m
Ricariche auto elettriche Ricariche auto elettriche
EnelX FAST COOP Piossasco
2,5 Km
Municipio di Piossasco | EnelX
2,6 Km
Scuole Scuole
Scuole
880 m
Liceo Vito Scafidi
2,4 Km
Scuola Media A. Einstein
2,6 Km
Farmacia Farmacia
Farmacia
960 m
Farmacia Comunale 20
1,1 Km
Farmacia Santa Chiara
1,2 Km
Farmacia San Carlo
2,7 Km
Farmacia Comunale 19
2,8 Km
Ospedali Ospedali
Casa di cura Villa Serena
2,7 Km
Supermercati Supermercati
Simply Market
850 m
Ekom
880 m
CRAI
2,4 Km
Supermercati
2,5 Km
Ipercoop
2,5 Km
Negozi Negozi
Facit
2,5 Km
Negozi
2,8 Km
Bar Bar
Prabernasca Cafè
2,1 Km
Bar
2,7 Km
Ristoranti Ristoranti
Pizza Rock
910 m
osteria 68
2,5 Km
Ristoranti
2,5 Km
Il Mulino
3,0 Km
Mostra tutto

Caratteristiche

Rif.:
61168329
Piano:
Terra con giardino di 2
Totale piani:
2
Posti auto:
2
Terrazzi:
1
Camere da letto:
2
Mostra tutto
Prezzo Prezzo
€ 175.000
Rata mutuo Rata mutuo
€ 829 / mese
Spese annue Spese annue
€ 900
Proponi il tuo prezzoProponi il tuo prezzo
Immobile valutato con T·Valuta

Classe Energetica

D
D
D
D
D
D
D
D
D
EP invernale del fabbricato:
EP estiva del fabbricato:
Anno di costruzione:
1980
Riscaldamento:
Autonomo
Tipo impianto:
A radiatori
Tipo alimentazione:
Metano

Ti interessa visionare l'immobile?

Fissa un appuntamento  Fissa un appuntamento

Richiedi informazioni

Clicca su Leggi per aprire l'informativa
* Questi campi sono obbligatori

Calcola il tuo mutuo

Semplice e senza impegno
Anticipo

( % )
Mutuo

( % )

pochi semplici passi

inserisci i tuoi dati
Questionario completato
Grazie per aver richiesto un appuntamento senza impegno con un nostro Consulente del Credito e Assicurativo.

Hai inserito correttamente tutti i dati necessari e a breve riceverai una e-mail con un link da convalidare per inviare i tuoi dati.
Affiliato
Studio Bruino Sas
Via Roma, 32 10090 Bruino (TO)

Il nostro staff


  • Gei Marziano
    Affiliata
Via Roma, 32 10090 Bruino (TO)
Zona: Bruino-Sangano-Trana
Mostra su mappa
Orari: dal lunedi' al venerdi' dalle 9:00 alle 12.30-15:00 alle 20:00 sabato chiusura alle 19:00
Affiliato
Studio Bruino Sas
Via Roma, 32 10090 Bruino (TO)

2026 Tecnocasa Franchising S.p.A. - P. IVA 08365160152 - Via Monte Bianco 60/A 20089 Rozzano (MI). Ogni agenzia ha un proprio titolare ed è autonoma. Privacy policy | Policy utilizzo | Cookie policy