5 locali in vendita

Bruino, Via Trana
€ 120.000
Prezzo aggiornato
5 locali 5 locali
120 Mq 120 Mq
2 bagni 2 bagni

5 locali in vendita

Bruino, Via Trana

Descrizione annuncio

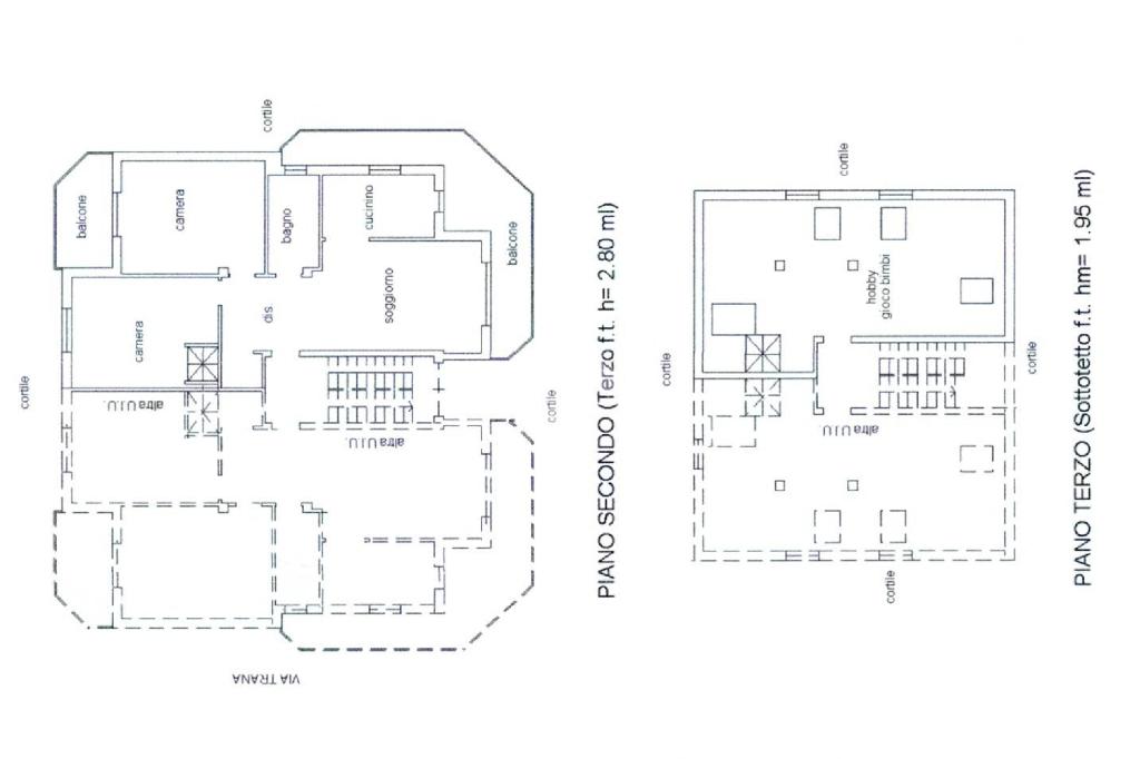
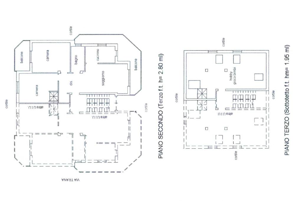
Bruino – Via Trana
In zona residenziale tranquilla e comoda ai servizi, a pochi passi dal centro del paese, proponiamo in vendita appartamento al terzo piano con mansarda, situato in una piccola palazzina di sole sei unità abitative.

L'appartamento, privo di ascensore, si sviluppa su due livelli. Al piano principale troviamo l'ingresso su un ampio soggiorno con cucinino, dal quale si accede a un terrazzino vivibile. La zona notte è composta da due camere da letto matrimoniali di generose dimensioni e un bagno finestrato completo di doccia e vasca.

Attraverso la scala esterna situata sul pianerottolo si accede al piano mansardato, alto e ben sfruttabile, composto da un ampio open space e un secondo bagno con vasca. I due piani possono essere collegati anche tramite scala interna.

Completano la proprietà un box auto, una cantina e una porzione di orto.
Il riscaldamento è centralizzato.

Mostra tutto

Nelle vicinanze

Trasporto pubblico Trasporto pubblico
Bruino (Villa Augusta)
Bruino (Villa Augusta)
180 m
Bruino (v. Susa/v. Cumiana)
Bruino (v. Susa/v. Cumiana)
380 m
Ricariche auto elettriche Ricariche auto elettriche
Campi Sportivi Villarbasse | EnelX
2,1 Km
Scuole Scuole
Scuole
640 m
Liceo Vito Scafidi
860 m
Scuola Media A. Einstein
1,1 Km
Scuola Materna
2,5 Km
Farmacia Farmacia
Farmacia Santa Chiara
340 m
Farmacia Comunale 20
750 m
Farmacia San Carlo
1,2 Km
Farmacia
1,5 Km
Supermercati Supermercati
Ekom
750 m
CRAI
860 m
Simply Market
1,1 Km
Negozi Negozi
Negozi
1,2 Km
Ristoranti Ristoranti
Pizza Rock
1,6 Km
Trattoria Italia
2,5 Km
Pari & Dispari
2,5 Km
Mostra tutto

Caratteristiche

Rif.:
61125673
Piano:
3 di 3 (Piano su più livelli)
Box:
1
Posti auto:
1
Balconi:
2
Camere da letto:
3
Mostra tutto
Prezzo Prezzo
€ 120.000
Rata mutuo Rata mutuo
€ 569 / mese
Spese annue Spese annue
€ 1.300
Proponi il tuo prezzoProponi il tuo prezzo
Immobile valutato con T·Valuta

Classe Energetica

Questo immobile è esente da classe energetica
Anno di costruzione:
1985
Riscaldamento:
Centralizzato
Tipo impianto:
A radiatori
Tipo alimentazione:
Metano

Prezzo ridotto di €1 (18%%)

Ti interessa visionare l'immobile?

Fissa un appuntamento  Fissa un appuntamento

Richiedi informazioni

Clicca su Leggi per aprire l'informativa
* Questi campi sono obbligatori

Calcola il tuo mutuo

Semplice e senza impegno
Anticipo

( % )
Mutuo

( % )

pochi semplici passi

inserisci i tuoi dati
Questionario completato
Grazie per aver richiesto un appuntamento senza impegno con un nostro Consulente del Credito e Assicurativo.

Hai inserito correttamente tutti i dati necessari e a breve riceverai una e-mail con un link da convalidare per inviare i tuoi dati.
Affiliato
Studio Bruino Sas
Via Roma, 32 10090 Bruino (TO)

Il nostro staff


  • Gei Marziano
    Affiliata
Via Roma, 32 10090 Bruino (TO)
Zona: Bruino-Sangano-Trana
Mostra su mappa
Orari: dal lunedi' al venerdi' dalle 9:00 alle 12.30-15:00 alle 20:00 sabato chiusura alle 19:00
Affiliato
Studio Bruino Sas
Via Roma, 32 10090 Bruino (TO)

2026 Tecnocasa Franchising S.p.A. - P. IVA 08365160152 - Via Monte Bianco 60/A 20089 Rozzano (MI). Ogni agenzia ha un proprio titolare ed è autonoma. Privacy policy | Policy utilizzo | Cookie policy